StudioPAD

Accessible Home with a kitchenette

Each StudioPAD is a fully functional studio apartment for people with mobility challenges. It is designed as an accessible studio, complete with a kitchenette, sleeping area, and bathroom exceeding requirements for the Americans with Disabilities Act.

It has everything a someone needs to live independently:

  • An accessible kitchenette.

  • Fully accessible bathroom.

  • Built-in ceiling hoistway track is lift-ready to eliminate wheelchair side board transfers to the bathroom and bed.
  • Outlets and switches installed at a comfortable, accessible height.

 

StudioPAD's Dimensions

  • Dimensions: 8.5’ wide x 28’ long x 13’ high (10' 10" off trailer)

Download the specifications (PDF)

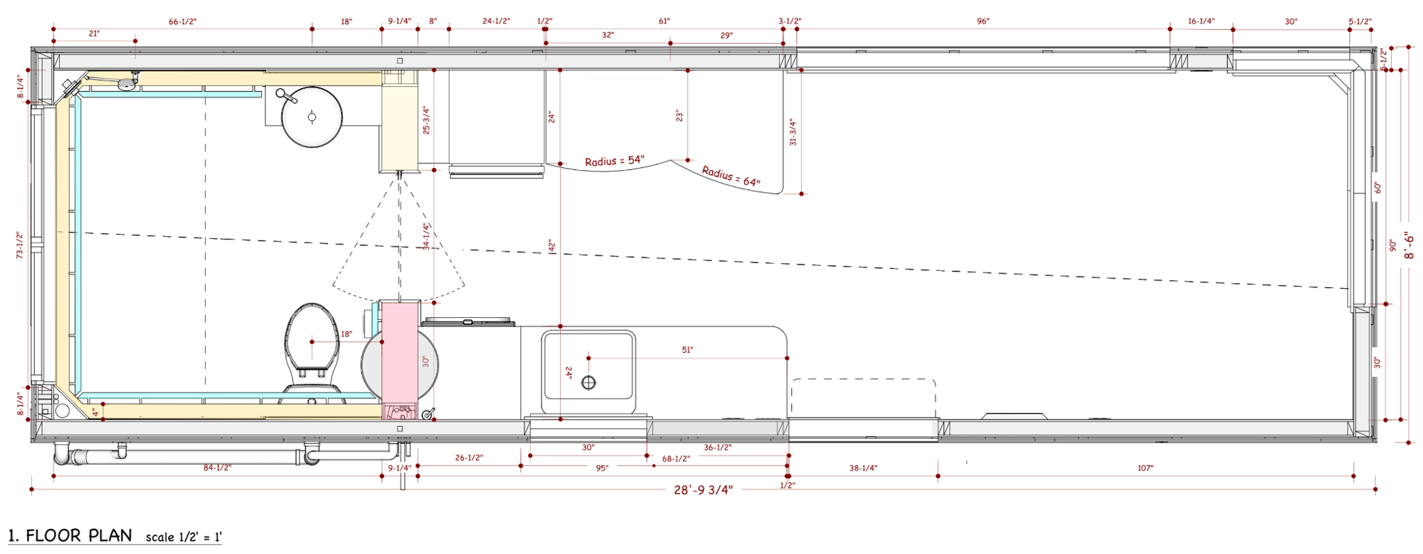
WheelPad StudioPAD Floor Plan

WheelPad StudioPAD floor plan
StudioPAD Interior
StudioPAD bathroom with ceiling track

StudioPAD's Unique Specifications

Each StudioPAD has a ceiling lift track to facilitate movement from the bedroom directly to the bathroom.

There is ample space for an aide when personal care assistance is needed.

 

Without tooting our own horn too much...

We've won awards for aesthetics as well as functionality and technical excellence: "WheelPad offerings stand out not just because they solve so many problems for people with mobility challenges, but it's also just a cozy space I want to be in. Too often designers of mobility equipment just focus on the former." World Architecture News!

At WheelPad, our mission is to provide housing for people with mobility issues in a respectful and supportive manner, while building a socially conscious and environmentally friendly company.

Logistics

All WheelPad models are built offsite and installed quickly.

We assist your contractor in pulling building permits, and during the installation process.

We take care of the process from soup to nuts. Our expertise is building beautiful and functional spaces for people with mobility challenges. Working with Wheel Pad allows you to keep your focus on your family.

WheelPad Moving Model

Pricing

StudioPAD pricing depends on installation. Please call us at (802) 458-7194 to discuss your project.

Buyback Commitment 

When housing is built to move, you can move it more than once. If you decide you no longer want it, we commit to purchasing it back, so it can serve the next family in need.

About WheelPad

Speed - Flexibility - Mobility

Wheel Pad looks forward to working with you to deliver the product that works best for your family, to help you stay in your home.

For more information about Wheel Pad please contact RJ Adler at (802)458-7194 or rj@wheelpad.com 

More questions?

Learn how WheelPad can make your property universally accessible.